Évier de cuisine Lexa 6 S
- couleur gris volcan
- matériau SILGRANIT® PuraDur®
- convient pour un montage par le dessus
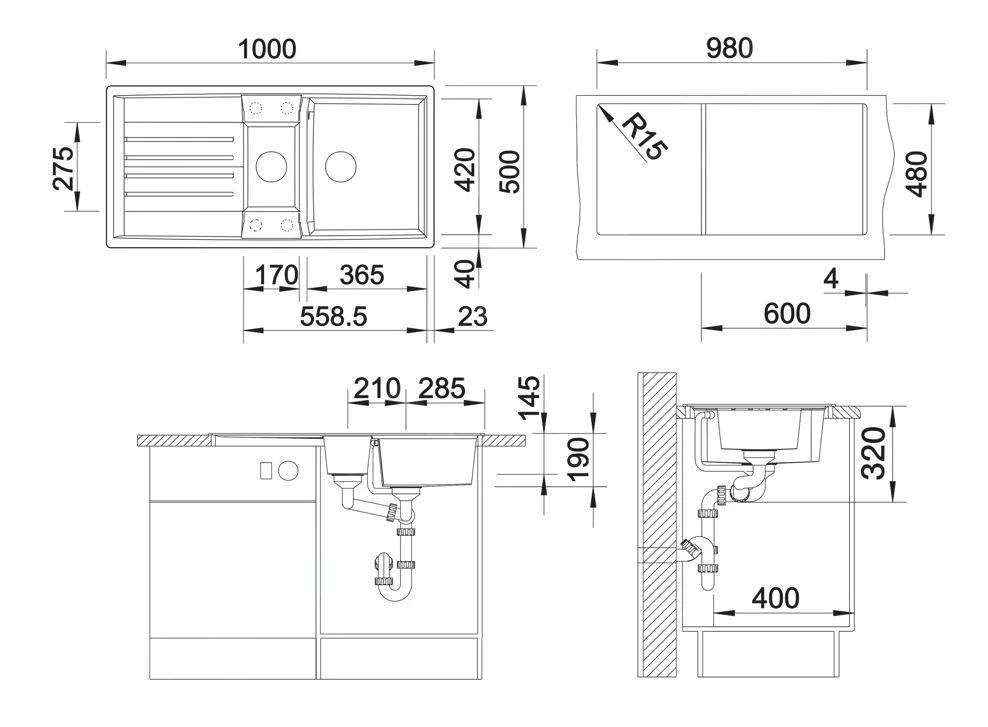
- dimensions minimales du meuble 600 mm
- 4 trous préfraisés à transpercer
- avec égouttoir et petit bac
- conception réversible
- dimensions totales 1000 × 500 mm
- dimensions du bac 365 × 420 mm
- dimensions du petit bac 175 × 275 mm
- profondeur de l’évier 190 mm
- profondeur du receveur 145 mm
- avec commande excentrique de l’évacuation (à distance)
- diamètre de l’évacuation 3 1/2″
L’emballage comprend :
- bonde à panier 3 1/2⁄ 2“ InFino®avec commande du vidage (bouton rotatif)
- garniture de vidage et de trop-plein avec siphon gain de place
- bol polyvalent en acier inoxydable



















Avis
Il n’y a pas encore d’avis.